
CASA A FONTANA DI TREVI - ROMA
Progettazione d'interni e di arredi - Direzione Lavori
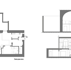
Lo spazio voltato di un antico refettorio, ospita oggi un'abitazione privata giocata sulla doppia altezza. La scala in calcestruzzo armato, che collega la zona giorno alla zona notte, contrasta con la cifra classica del progetto fortemente voluta dal proprietario, un archeologo romano.
© Livia Comes